Trilocale in vendita

Firenze, via Viuzzo delle Canne - Gioberti
€ 295.000
3 locali 3 locali
70 Mq 70 Mq
1 bagno 1 bagno

Trilocale in vendita

Firenze, via Viuzzo delle Canne - Gioberti

Descrizione annuncio

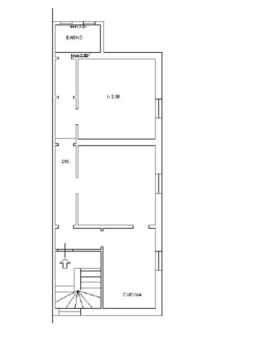
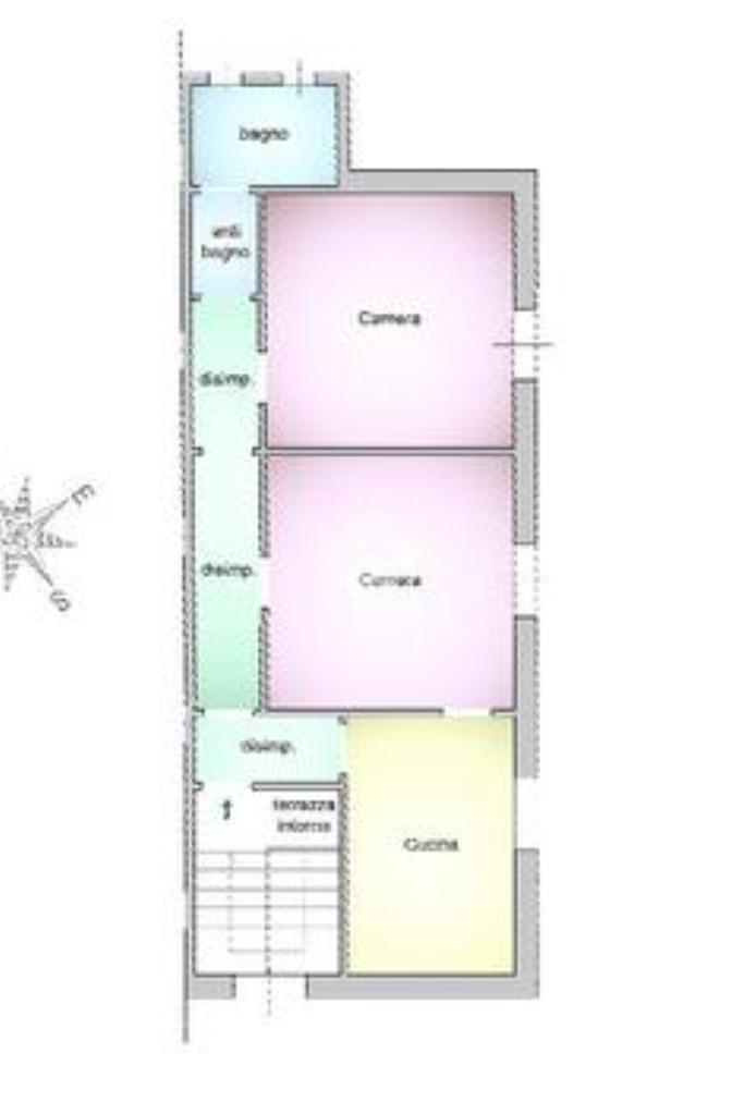
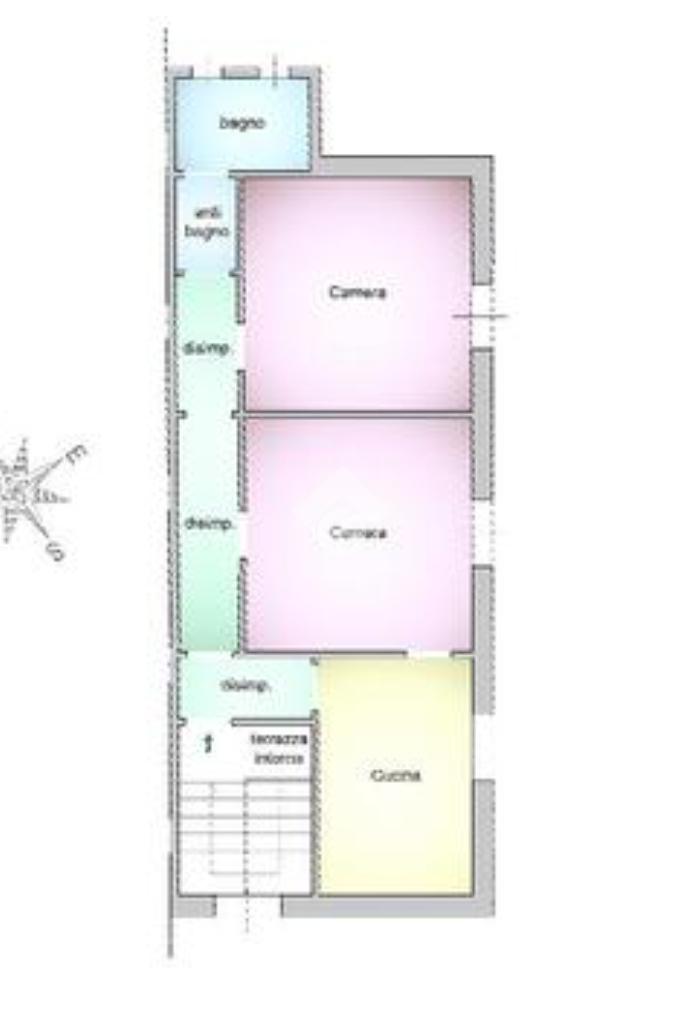
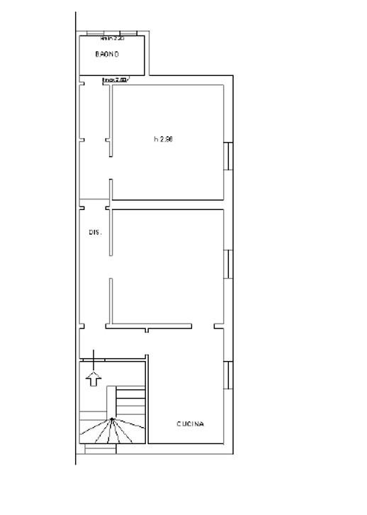
VIUZZO DELLE CANNE – In strada silenziosa, nelle immediate vicinanze di Via Gioberti, trilocale di 60 mq utili situato al primo ed ultimo piano di una piccola palazzina di sole tre unità abitative. L’immobile è così composto: ingresso-disimpegno, cucina abitabile, due camere matrimoniali, antibagno e bagno con finestra. L’appartamento, pur necessitando di alcuni interventi di ristrutturazione, risulta in buone condizioni con gli infissi che sono stati recentemente sostituiti. L’ottima esposizione ad est rende l’immobile particolarmente luminoso ed essendo solo al piano, gode anche di privacy e tranquillità. Il taglio e la metratura conferiscono a questa abitazione un’ottima versatilità, risultando ideale sia come abitazione principale, sia come investimento per essere messo a reddito. L’impianto di riscaldamento è autonomo con conseguenti spese condominiali molto contenute.

Situato in posizione strategica per la presenza di numerosi uffici professionali ed eleganti abitazioni, a piedi ed in bicicletta si possono raggiungere comodamente i principali luoghi di servizio, la stazione di Campo di Marte, i lungarni, Piazza Beccaria, Via Gioberti ed il centro storico di Firenze.

Mostra tutto

Nelle vicinanze

Trasporto pubblico Trasporto pubblico
stazione di Firenze Campo di Marte
stazione di Firenze Campo di Marte
800 m
stazione di Firenze Santa Maria Novella
stazione di Firenze Santa Maria Novella
2,4 Km
Unità
Unità
2,1 Km
Valfonda - Stazione Santa Maria Novella
Valfonda - Stazione Santa Maria Novella
2,2 Km
Oberdan Campanella
Oberdan Campanella
220 m
Ricariche auto elettriche Ricariche auto elettriche
Garage Florence Parking | EnelX
240 m
Eneldrive (ex SILFI) Ghirlandaio
240 m
Eneldrive (ex SILFI) Leon Battista Alberti
420 m
Eneldrive (ex SILFI) Porta alla Croce
430 m
Garage Grand Hotel Mediterraneo | EnelX
510 m
Scuole Scuole
Scuola Don Bosco
200 m
Scuola Primaria Giotto
320 m
Istituto San Giuseppe
360 m
Scuola Secondaria di Primo Grado "Giosuè Carducci"
470 m
Istituti Paritari Cavour Pacinotti
490 m
Farmacia Farmacia
Farmacia Ninci
190 m
Farmacia Bargioni
250 m
Parafarmacia Borgo La Croce
460 m
Farmacia Mazzini
630 m
Farmacia Fedema
750 m
Ospedali Ospedali
Villa Donatello
1,1 Km
Ospedale di Santa Maria Nuova
1,3 Km
Ospedale Piero Palagi
1,7 Km
CUR 112 TOSCANA
1,8 Km
Supermercati Supermercati
Conad City
110 m
Coop
200 m
Coop.fi
720 m
Il Villaggio dei Popoli
990 m
Marguerita Conad
1,2 Km
Negozi Negozi
Grandi Firme
20 m
Moijejoue
20 m
Platynum
30 m
Michela Style
30 m
Ragù
30 m
Bar Bar
Bar
70 m
Caffè Il Giobertino
140 m
Caffè La Sosta
190 m
Bar Oberdan
230 m
Bar L'Etrusco
240 m
Ristoranti Ristoranti
Pizzeria Le Stagioni
40 m
FuoriPiazza
70 m
Osteria Il Sordo
80 m
Il Vecchio e il Mare
80 m
Il Barrino
90 m
Mostra tutto

Caratteristiche

Rif.:
61142395
Piano:
1 di 1 (ultimo Piano)
Camere da letto:
2
Arredamento:
Assente
Condizionamento:
Assente
Ascensore:
No
Mostra tutto
Prezzo Prezzo
€ 295.000
Rata mutuo Rata mutuo
€ 1.390 / mese
Spese annue Spese annue
€ 0
Proponi il tuo prezzoProponi il tuo prezzo

Classe Energetica

G
G
G
G
G
G
G
G
G
EP globale non rinnovabile:
175.00 kW h/m² anno
EP invernale del fabbricato:
EP estiva del fabbricato:
Anno di costruzione:
1950
Riscaldamento:
Autonomo
Tipo impianto:
A radiatori
Tipo alimentazione:
Metano

Ti interessa visionare l'immobile?

Fissa un appuntamento  Fissa un appuntamento

Richiedi informazioni

Clicca su Leggi per aprire l'informativa
* Questi campi sono obbligatori

Calcola il tuo mutuo

Semplice e senza impegno
Anticipo

( % )
Mutuo

( % )

pochi semplici passi

inserisci i tuoi dati
Questionario completato
Grazie per aver richiesto un appuntamento senza impegno con un nostro Consulente del Credito e Assicurativo.

Hai inserito correttamente tutti i dati necessari e a breve riceverai una e-mail con un link da convalidare per inviare i tuoi dati.
Affiliato
Studio Beccaria Gioberti Sas
P.zza Oberdan, 2R 50122 Firenze (FI)

Il nostro staff


  • Antonio Gori
    Affiliato

  • Francesco Baggio
    Responsabile
P.zza Oberdan, 2R 50122 Firenze (FI)
Zona: Firenze-Gioberti
Mostra su mappa
Orari: Lunedi - Venerdi 09-13 15:30-20:00 Sabato 09-13
Affiliato
Studio Beccaria Gioberti Sas
P.zza Oberdan, 2R 50122 Firenze (FI)

2026 Tecnocasa Franchising S.p.A. - P. IVA 08365160152 - Via Monte Bianco 60/A 20089 Rozzano (MI). Ogni agenzia ha un proprio titolare ed è autonoma. Privacy policy | Policy utilizzo | Cookie policy